Contenuto sezione Porzione dell’ex Arsenale, Pavia

Porzione dell’ex Arsenale, Pavia

Portafoglio: CULTURALE/TURISTICO

Dati immobile

Regione:
Lombardia
Provincia:
Pavia
Comune:
Pavia
Scheda:
PVD0032 (parte)
Ambito:
urbano
Indirizzo:
Via Riviera, 42
Epoca di costruzione:
seconda metà dell'800
Superficie fondiaria:
140.317 mq
Superficie lorda:
53.263 mq
Provvedimenti di tutela e vincoli:
Interesse storico e artistico

Inquadramento territoriale

Il compendio immobiliare si trova nel quartiere Stazione-Ticinello, nella periferia ovest del comune di Pavia, lungo via Riviera, importante arteria di accesso alla città sia dalla tangenziale sia dall’autostrada con uscita Bereguardo. L’area è ben servita dai mezzi pubblici e presenta un tessuto urbano misto, caratterizzato da capannoni a destinazione commerciale e artigianale, oltre che da condomini e villette residenziali. La posizione risulta particolarmente favorevole: l’immobile dista circa 800 metri dalla stazione ferroviaria di Pavia e circa 1,5 km dal centro storico. Nelle immediate vicinanze si trovano inoltre numerosi servizi e strutture pubbliche, tra cui chiese, scuole, parchi e parcheggi, che contribuiscono a rendere la zona funzionale e ben integrata nel contesto urbano.

Descrizione

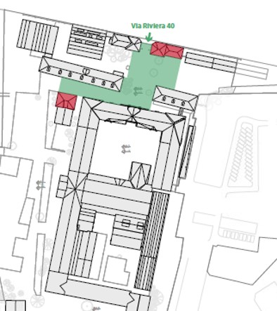
La porzione interessata dall’uso temporaneo, composta da circa 400 mq di fabbricati e 1.600 mq di area esterna, appartiene al complesso denominato ex Arsenale di Pavia, situato in posizione semi-centrale lungo via Riviera, nelle immediate vicinanze del centro storico. La porzione comprende: - Fabbricato 1, a un piano fuori terra, con struttura in muratura, pavimentazione in ceramica e copertura a falde. - Fabbricato 2, già destinato a ricovero mezzi, riconoscibile per la scritta POMPIERI e i relativi stemmi sulla facciata in mattoni a vista; presenta struttura portante e tamponature in muratura, pavimentazione in cemento e copertura a padiglione. - Area esterna pavimentata, di circa 1.600 mq, che funge da spazio di collegamento tra i due fabbricati.

Destinazioni previste

Fruizione pubblica di carattere culturale e ricreativo

Modulo di contatto

 

Accetto le dichiarazioni policy privacy* per poter procedere

 

Tutti i campi contrassegnati da un asterisco (*) sono obbligatori.
 

Torna su